Biasca

Casa con giardino e progetto con licenza approvata a Biasca

Biasca
Progetto immobiliare
Vendita
176
2 Piani
ID Immobile SM
Su richiesta
Biasca
Progetto immobiliare
Vendita
176
2 Piani
ID Immobile SM
Su richiesta

DESCRIZIONE

Vendita Casa e Progetto per la Realizzazione di Due Appartamenti con Licenza Approvata

Un’opportunità unica di investimento immobiliare, proposta in vendita una casa esistente elegante con un progetto già approvato per la realizzazione di due appartamenti moderni e funzionali. Grazie alla licenza edilizia approvata, potrai avviare subito i lavori senza preoccuparti di lunghe attese o complicazioni burocratiche.

Caratteristiche della Proprietà

  • Casa con giardino e progetto con licenza approvata a Biasca: immobile abitabile da subito .
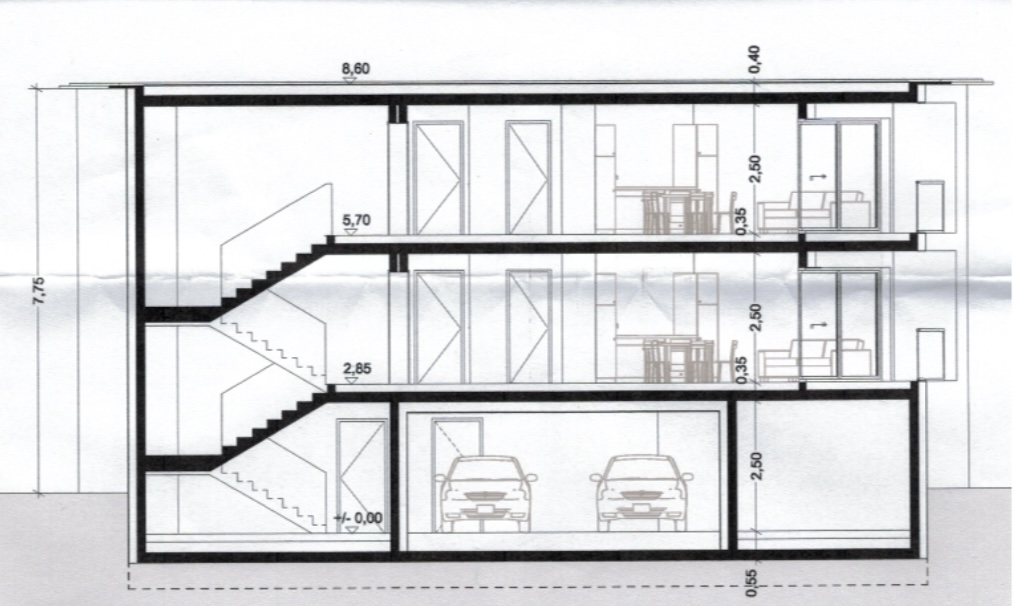
  • Progetto approvato: due appartamenti da costruire, con una metratura di circa 90 mq ciascuno su due livelli.
  • Spazi ottimizzati: gli appartamenti sono progettati per rispondere alle esigenze di mercato, ideali per famiglie, giovani coppie, come affitto a lungo termine a reddito.
  • Efficienza energetica: predisposizione di riscaldamento a pompa di calore, per aumentare il valore e ridurre i costi di gestione.

Opportunità di Investimento Immobiliare

Questa casa con giardino e progetto con licenza approvata disponibile da subito a Biasca è perfetta sia per chi cerca una soluzione abitativa ampia e moderna nel verde, sia per chi vuole realizzare due appartamenti e metterli a reddito

  • Costruzione immediata: grazie alla licenza già approvata, puoi partire subito con i lavori, ottimizzando tempi e risorse.
  • Rendimento garantito: una volta completati, i due appartamenti possono essere affittati per ottenere un reddito stabile.
  • Locations: posizione strategica offre ottime prospettive di rivalutazione sul mercato immobiliare.

Posizione Strategica

L’immobile si trova in una zona residenziale in espansione, ben collegata ai principali servizi e ai trasporti pubblici. La vicinanza a scuole, negozi e spazi verdi aumenta l’attrattività per potenziali inquilini e acquirenti, favorendo affitti a lungo termine.

Perché Investire Ora

Questo progetto con licenza edilizia approvata ti permette di evitare le incertezze legate ai permessi, iniziando subito a costruire e massimizzando i tempi di realizzazione. In un mercato in crescita, cogliere questa opportunità significa assicurarsi un investimento immobiliare sicuro e redditizio, con un immobile già esistente e due nuovi appartamenti da sviluppare.

Questo è il momento giusto per fare un passo avanti verso un investimento intelligente e di valore.

Caratteristiche

Ingresso Indipendente

Sei interessato all’immobile?
Contatta il tuo consulente

    Proprietà simili